| Niveau | Pièce | Surface |
|---|
A VENDRE TERRAIN CONSTRUCTIBLE 2460m2 AVEC PERMIS A ST SATURNIN LES APT LUBERON PROVENCE
A VENDRE TERRAIN CONSTRUCTIBLE 2460m2 AVEC PERMIS A ST SATURNIN LES APT LUBERON PROVENCE
-
NC
-
2460 m²
-
NC pièce(s)
-
NC chambre(s)
-
Piscine
-
Construction : NC
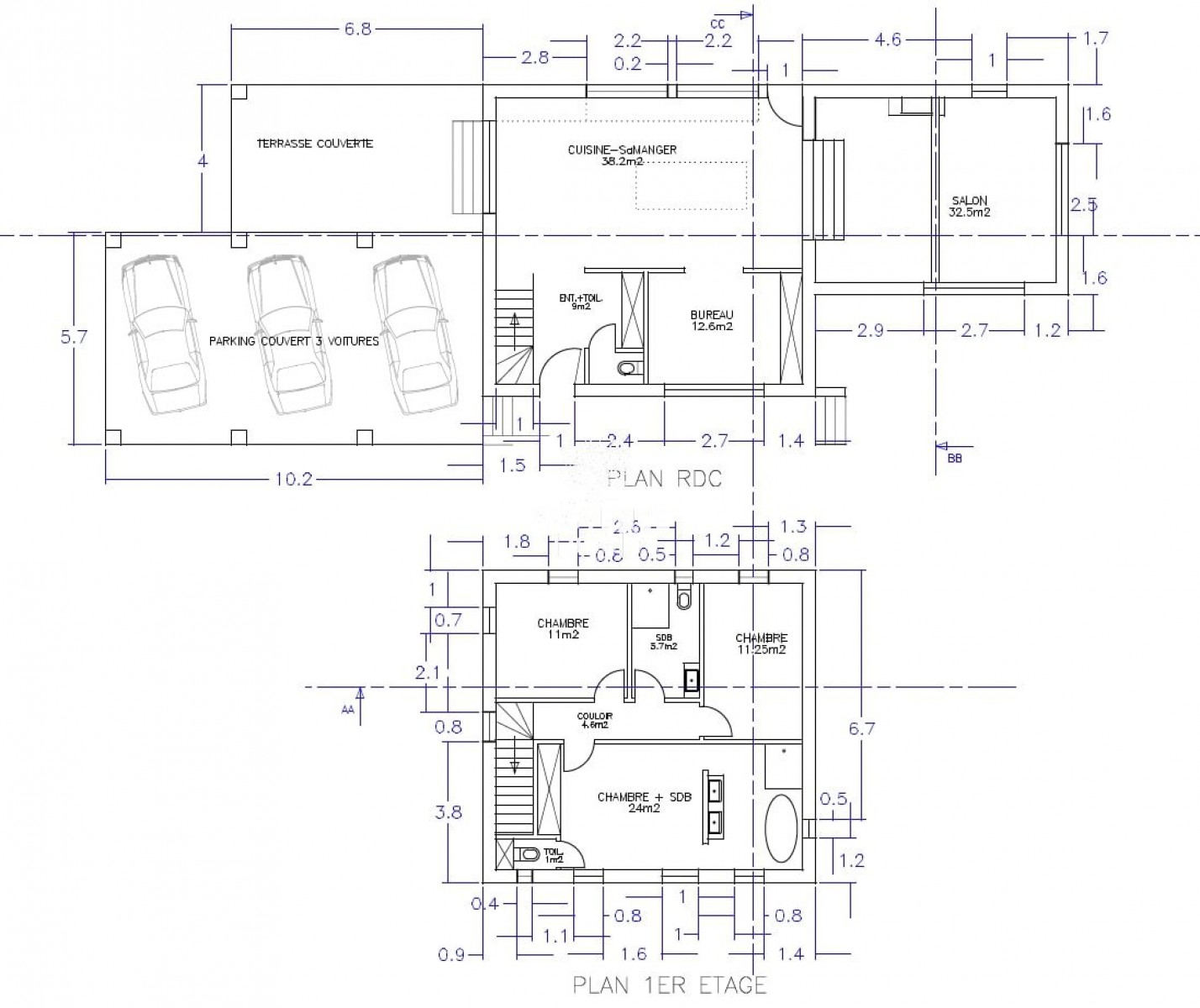
Provence Home, l’agence immobilière du Luberon, vous propose à la vente, près d'un hameau de Saint-Saturnin-les-Apt, un magnifique terrain constructible de 2460m². Ce terrain bénéficie d'un permis de construire accepté pour une maison d'habitation de 150m² et un abri pour 3 voitures, non clos et adjacent à la construction.
Niché dans un environnement calme et pittoresque, ce terrain est exposé plein sud, offrant ainsi un cadre idéal. Il est également à quelques minutes en voiture des commerces. Les raccordements pour l'eau, l'électricité et l'assainissement sont disponibles en bordure du terrain, nécessitant juste la viabilisation. Une étude de sol a déjà été réalisée pour faciliter le processus de construction.
PROVENCE-HOME, vente de biens de charme et de prestige dans le Luberon – contact@provence-home.com +33 (0)4 90 74 54 47
Notre barème d'honoraires
* Honoraires charge vendeur.
Performances énergétiques
Informations complémentaires
- Ref 840102124
- Ref 25071820
- Taxe foncière NC €












